Reda-nowoczesne mieszkanie z ogródkiem na parterze
Reda Pokaż na mapie ›
Dodane: Czwartek, 30 Październik, 2025 10:14
412 640 zł
8091 zł/m2
Szczegóły ogłoszenia
- Kategoria: Mieszkania / Sprzedaż
- Powierzchnia:51 m2
- Liczba pokoi:2 pokoje
- Zabudowa:Blok
- Tech. budowy:Inne
- Piętro :Parter
- Liczba pięter:Parterowy
- Rynek:Wtórny
- Rok budowy:2024
- Sprzedaż:Pośrednik
- Cena: 412 640 zł / 8091 zł/m2
Opis oferty
Oferta dotoczy nowej, prestiżowej inwestycji mieszkaniowej ,zlokalizowanej w Redzie przy ulicy Willowe.
Osiedle jest świetnie skomunikowane z Trójmiastem.
Dzielnica jest bardzo dobrze rozwinięta z pełną infrastrukturą, w
pobliżu znajdują się sklepy, punkty usługowe, placówki
edukacyjne, park, skatepark, przychodnia zdrowia, kościół.
W okolicy znajdują się liczne atrakcje rekreacyjne dla aktywnych
takie jak Jumpcity, Aquapark, korty tenisowe, squash, siłownia.
Zapraszamy do zapoznania się z ciekawą propozycją kompleksu
mieszkaniowego o wysokim standardzie deweloperskim.
Jest to wyjątkowa oferta do zamieszkania dla osób ceniących kontakt
z natura zielenią, pięknym krajobrazem.
LOKALIZACJA
Kameralna zabudowa otoczona piękną architekturą krajobrazu.
Wygodne połączenie z komunikacją miejską.
Do dworca PKP około 10 minut autobusem, dostęp do stacji kolejowej,
zapewniający szybkie połączenia z Trójmiastem.
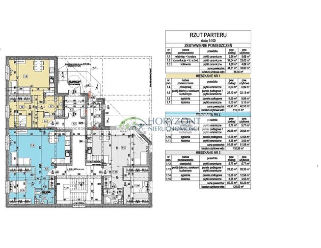
OPIS MIESZKAŃ
PARTER; 51,77m2
ROZKŁAD MIESZKANIA;
- przedpokój o pow. 5,77m2
- pokój dzienny z aneksem kuchennym o pow. 29,68m2
- sypialnia o pow. 12,58 m2
- łazienka o pow. 3,58m2
Standard deweloperski, jest też możliwość dostosowania wnętrza do
indywidualnej aranżacji wnętrz.
Mieszkania na parterze z ogródkiem.
Od 8500 PLN/m²
Inwestycja sprzedawana na rachunek powierniczy
Cała inwestycji będzie ogrodzona, co zapewni mieszkańcom
bezpieczeństwo.
Miejsca parkingowe naziemne będą ogólnie dostępne dla
mieszkańców.
DLA PIERWSZEGO KLIENTA GARAŻ DWUSTANOWISKOWY W CENIE MIESZKANIA.
Atrakcyjna lokalizacja: zapewnia spokój i bliskość natury.
Dogodna komunikacja: łatwy dostęp do większych miast.
Może stanowić bardzo dobrą oferta dla inwestorów.... mieszkania w
dobrej cenie.
Jeśli poszukujesz nowoczesnego mieszkania w doskonałej lokalizacji,
ta oferta jest dla Ciebie!
Zapraszamy do kontaktu pod nr. tel. 518 - pokaż numer telefonu - , aby uzyskać więcej
informacji i umówić się na prezentację mieszkań.
Gwarantujemy bezpieczeństwo wszystkich realizowanych przez nas
transakcji. Posiadamy licencję zawodową pośrednika w obrocie
nieruchomościami, a wszystkie transakcje są objęte ochroną
ubezpieczeniową. Zapraszamy do kontaktu, bezpłatnie pomagamy w
uzyskaniu kredytu bankowego na zakup nieruchomości oraz służymy
pomocą i doradztwem w zakresie objętym planowaną przez Państwa
inwestycją.
Sprawdź zainteresowanie tym ogłoszeniem
Wyświetlenia
Data dodania
Ostatnio widziany
Obserwujących
Wysłane zapytania
Odsłony telefonu
Powiadom o podobnych ogłoszeniach
Lokalizacja: Reda
Kategoria: Nieruchomości » Mieszkania » Sprzedaż
Cena: od 350500 zł do 474500 zł Powierzchnia : od 43 m2 do 59 m2
Chcę otrzymywać powiadomienia o nowych ofertach
- Wypromuj ogłoszenie
- Zgłoś naruszenie
- Drukuj ulotkę
- Edytuj/usuń ogłoszenie
- Udostępnij ogłoszenie
- Dodaj na Facebook














